Looking for Stock Plans?

Find the perfect stock plan. Searching is quick and easy!   Search Now

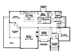
Stock Plan #L2GU-2423

Square Footage: 2,423
Upper Sq Ft: 975
Lower Sq Ft: 743
Width: 62
Depth: 37
Stories: TWO STORY DAYLIGHT BASEMENT
Beds: 4
Actual Beds: 4+
Master Bed Location: UPPER
Optional Bed: YES
Den: YES
Price: $1,400.00
Share this plan

Images (1)

Floor Plans