Looking for Stock Plans?

Find the perfect stock plan. Searching is quick and easy!   Search Now

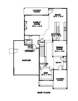
Stock Plan #L2B-2686

Square Footage: 2,686
Upper Sq Ft: 1,404
Lower Sq Ft: 0
Width: 40
Depth: 60
Stories: TWO STORY
Beds: 4
Actual Beds: 4+
Master Bed Location: UPPER
Optional Bed: YES
Den: YES
Price: $1,400.00
Share this plan

Images (1)

Floor Plans