Looking for Stock Plans?

Find the perfect stock plan. Searching is quick and easy!   Search Now

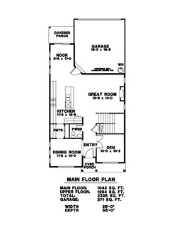
Stock Plan #L2AL-2336

Square Footage: 2,336
Upper Sq Ft: 1,294
Lower Sq Ft: 0
Width: 28
Depth: 56
Stories: TWO STORY
Beds: 3
Actual Beds: 3
Master Bed Location: UPPER
Optional Bed: YES
Den: YES
Price: $1,400.00
Share this plan

Images (1)

Floor Plans