Looking for Stock Plans?

Find the perfect stock plan. Searching is quick and easy!   Search Now

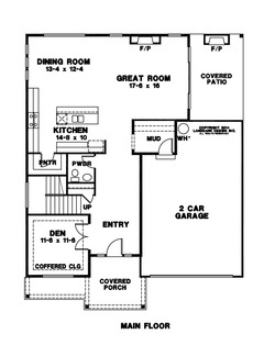
Stock Plan #L2-3774

Square Footage: 3,774
Upper Sq Ft: 1,801
Lower Sq Ft: 757
Width: 42
Depth: 53
Stories: TWO STORY
Beds: 5
Actual Beds: 5+
Master Bed Location: UPPER
Optional Bed: YES
Den: YES
Price: $1,600.00
Share this plan

Images (1)

Floor Plans