Looking for Stock Plans?

Find the perfect stock plan. Searching is quick and easy!   Search Now

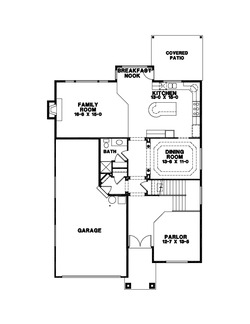
Stock Plan #L2-3066

Square Footage: 3,066
Upper Sq Ft: 1,605
Lower Sq Ft: 0
Width: 42
Depth: 43
Stories: TWO STORY
Beds: 3
Actual Beds: 3
Master Bed Location: UPPER
Optional Bed: NO
Den: NO
Price: $1,600.00
Share this plan

Images (1)

Floor Plans