Looking for Stock Plans?

Find the perfect stock plan. Searching is quick and easy!   Search Now

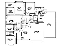
Stock Plan #L2-3005

Square Footage: 3,005
Upper Sq Ft: 406
Lower Sq Ft: 0
Width: 77
Depth: 68
Stories: TWO STORY
Beds: 3
Actual Beds: 3
Master Bed Location: MAIN
Optional Bed: NO
Den: YES
Price: $1,600.00
Share this plan

Images (1)

Floor Plans