Looking for Stock Plans?

Find the perfect stock plan. Searching is quick and easy!   Search Now

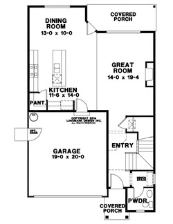
Stock Plan #L2-2033

Square Footage: 2,033
Upper Sq Ft: 1,131
Lower Sq Ft: 0
Width: 30
Depth: 50
Stories: TWO STORY
Beds: 4
Actual Beds: 4
Master Bed Location: UPPER
Optional Bed: NO
Den: NO
Price: $1,400.00
Share this plan

Images (1)

Floor Plans