Looking for Stock Plans?

Find the perfect stock plan. Searching is quick and easy!   Search Now

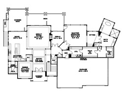
Stock Plan #L1D-5717

Square Footage: 5,717
Upper Sq Ft: 0
Lower Sq Ft: 2,723
Width: 100
Depth: 68
Stories: BASEMENT HOME
Beds: 3
Actual Beds: 3
Master Bed Location: MAIN
Optional Bed: NO
Den: YES
Price: $4,287.75
Share this plan

Images (1)

Floor Plans