Looking for Stock Plans?

Find the perfect stock plan. Searching is quick and easy!   Search Now

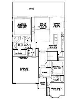
Stock Plan #L1D-3212

Square Footage: 3,212
Upper Sq Ft: 0
Lower Sq Ft: 1,286
Width: 42
Depth: 66
Stories: BASEMENT HOME
Beds: 5
Actual Beds: 4+
Master Bed Location: MAIN
Optional Bed: YES
Den: YES
Price: $1,600.00
Share this plan

Images (1)

Floor Plans