Looking for Stock Plans?

Find the perfect stock plan. Searching is quick and easy!   Search Now

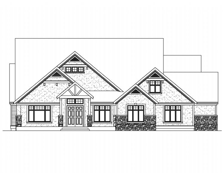
Stock Plan #1711

Square Footage: 5,037
Upper Sq Ft: 2,118
Lower Sq Ft: 0
Width: 74
Depth: 79
Stories: TWO STORY
Beds: 4
Actual Beds: 4
Master Bed Location: MAIN
Optional Bed: YES
Den: YES
Price: $3,777.75
Share this plan

Images (1)

Floor Plans