Looking for Stock Plans?

Find the perfect stock plan. Searching is quick and easy!   Search Now

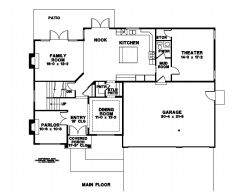
Stock Plan #1546

Square Footage: 4,833
Upper Sq Ft: 1,683
Lower Sq Ft: 1,532
Width: 62
Depth: 40
Stories: TWO STORY DAYLIGHT BASEMENT
Beds: 3
Actual Beds: 3
Master Bed Location: UPPER
Optional Bed: NO
Den: YES
Price: $3,624.75
Share this plan

Images (1)

Floor Plans