Looking for Stock Plans?

Find the perfect stock plan. Searching is quick and easy!   Search Now

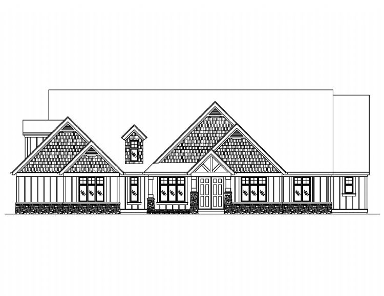
Stock Plan #1284

Square Footage: 3,558
Upper Sq Ft: 471
Lower Sq Ft: 0
Width: 82
Depth: 81
Stories: TWO STORY
Beds: 4
Actual Beds: 4
Master Bed Location: MAIN
Optional Bed: NO
Den: YES
Price: $1,600.00
Share this plan

Images (1)

Floor Plans