Looking for Stock Plans?

Find the perfect stock plan. Searching is quick and easy!   Search Now

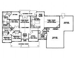
Stock Plan #1168

Square Footage: 2,353
Upper Sq Ft: 0
Lower Sq Ft: 0
Width: 93
Depth: 48
Stories: ONE STORY
Beds: 3
Actual Beds: 3
Master Bed Location: MAIN
Optional Bed: NO
Den: YES
Price: $1,400.00
Share this plan

Images (1)

Floor Plans