Looking for Stock Plans?

Find the perfect stock plan. Searching is quick and easy!   Search Now

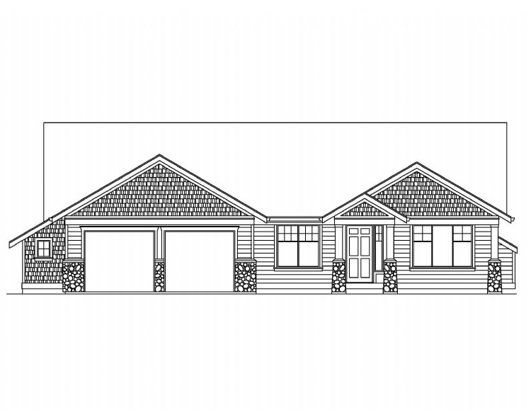
Stock Plan #1023-A

Square Footage: 1,890
Upper Sq Ft: 0
Lower Sq Ft: 0
Width: 56
Depth: 60
Stories: ONE STORY
Beds: 3
Actual Beds: 2+
Master Bed Location: MAIN
Optional Bed: YES
Den: YES
Price: $1,200.00
Share this plan

Images (1)

Floor Plans